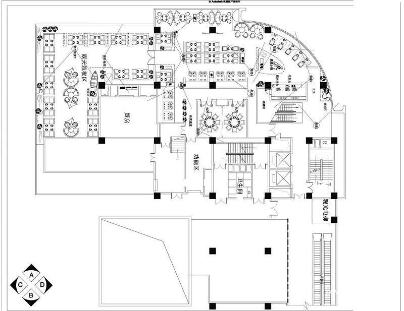
鄭州火鍋店平面設計,火鍋店平面結構設計分析,火鍋店裝修如何考慮到營業中的合理性,也就是火鍋店平面分布合理性,畢竟如果設計的不合理會影響到正常的營業,那么我們應該考慮到餐飲裝修那些設計因素呢?下面讓我們一起了解一下火鍋店裝修知識。

確定火鍋店設計公司后,要盡可能的準確表達清楚自己對火鍋店的設想,查看效果圖時,不僅要對內部裝修,顏色等創業性的內容進行審核,還要對所需店鋪的功能是否完備,顧客員工活動移動的點等相關最低限度的基礎進行審核。
這對于一般的火鍋店滿座時的店員人數應為每十個餐位就配備一名,接下來要考慮火鍋店的四大流程:1、接受顧客點菜后,將訂單下到后廚;2、從出菜口處取出菜肴,將其送至餐桌;3、就餐結束后收拾餐具并將其送至洗碗池;4、去收銀臺結賬。在圖紙上模擬四個流程,對桌椅擺放進行思考,避免造成員工工作繞路,顧客行走不便等問題。
原則上來說無論店鋪多小,都應該具備以下功能:陳列柜,儲藏室。收銀臺,客用衛生間,主廚房,洗碗池,空調設備,更衣室,配菜太,倉庫,音響,基本家具餐具,照明,冷庫等基礎功能。查看設計圖時要注意是否存在設計漏洞忽視了店鋪本該具有的功能。
鄭州火鍋店平面設計,火鍋店平面結構設計分析,裝修設計的合理性可以讓顧客用餐流程更加的方便,增加用戶體驗,讓每個裝修都給顧客帶來收益是我們的關鍵所在。
轉載請注明原文地址:http://m.yaoyongwanju.com/wenda/4902.html
現在預約咨詢,立即享受免費量房設計&施工報價
10秒快速在線申請