想必投資火鍋店的投資者,都想了解一下別人家的火鍋店裝修設計方案吧,下面就有鄭州裝飾設計為各位帶來一套完整的火鍋店裝修設計方案,我們一起來看看吧。

項目背景:
項目背景主要包括:項目名稱、項目所在詳細地址、項目面積大小、客戶經營理念、投資定位等組成。
項目介紹:舉例說明。本案火鍋店位于成都市武侯區武侯大道xx路x號,客戶擬定店名為“爐宴老火鍋”,火鍋店面積為520平方米,由上下兩層組成,屬于街店類型的餐廳。店面擬定為點餐式火鍋店,投資方意向裝修風格為復古工業風裝修風格。確定項目背景情況后,火鍋店設計公司開始介入,下面便是火鍋店設計公司的設計方案。

1、現場測量
前期了解客戶項目情況后,就要進行現場測量,現場尺寸測量主要是做平面分析和后期室內設計需要。
2、市場調研
市場調研部分主要是分析火鍋店行業狀況,主要包括項目所在地周邊人口狀況,周邊火鍋店分布狀況,周邊火鍋店消費檔次,分析競爭優勢,分析競爭劣勢。
3、人群定位
根據周邊人口狀況,來擬定火鍋店裝修檔次,決定火鍋店主要服務人群。從而決定火鍋店包間數量,餐桌數量等。
4、風格定位
這里的風格定位主要是根據投資方的意見和想法,火鍋店設計公司結合店面情況和周邊業態,用風格意向圖表達火鍋店設計風格,設計元素,裝飾材料等,后期會在效果圖中實際表達。
5、設計主題
對于一家火鍋店來說,設計主題也是體現競爭力的一種方式,現在很多火鍋店就是缺少特色,缺少主題。主題的表現方式為店面設計的一個中心思想,我們也可以看作是“牛主題”或者“生態主題”“工業主題”等。
6、平面分析
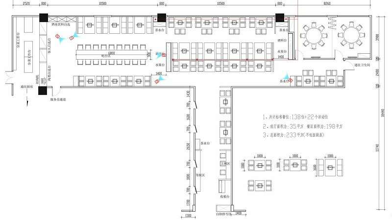
這里的平面分析,主要是更具火鍋店的市場定位和裝修檔次決定,火鍋店設計公司會給出每層的平面規劃分析,其中主要包括功能分區(收銀臺位置、廚房位置、包間分布、大廳用餐區分布、主題表現區),人流量走向分布,服務人群動向圖等。
7、設計概念
火鍋店概念設計主要是把以上裝修風格、設計定位、平面分析通過PPT的方式向投資方作以說明,最終確定概念,然后便是方案設計階段。

火鍋店平面結構分析圖
概念確定后便是火鍋店設計公司方案設計階段,方案設計由火鍋店設計師完成。設計師主要工作為:
平面梳理、空間結構造型:一層平面規劃、二層平面規劃。主要包含:廚房位置以及面積、收銀臺位置和面積、包間位置和面積、公共用餐區位置以及面積、公共區域(衛生間、過道等)位置面積等。
燈光效果:主要燈光位置,燈管輻射范圍,強調空間層次感,突出火鍋店裝修風格等。
色彩運用:火鍋店主要色調確定,吊頂風格和色系、墻面風格和色系、地面風格和色系、餐桌風格和色系等。
材料選擇:火鍋店主要裝修耗材選擇,各個部分耗材標注,材料顏色以及材質標注。后期裝修中會有材料表。
根據設計師設計架構,以及客戶需求什么地方出效果圖,什么方位出效果圖,出幾張效果圖。火鍋店設計公司為客戶出規定相關效果圖,如火鍋店包間效果圖、火鍋店公共用餐區效果圖、調料區效果圖等

火鍋店效果圖設計
火鍋店設計公司根據設計師方案和效果圖,為火鍋店制作施工圖,方便火鍋店在裝修中精確施工,足以達到設計效果。
水電圖部分,對于火鍋店來說,比較簡單。主要包含火鍋店裝修中的水路、電路走向節點位置、布線的水電施工說明。
施工銜接部分主要是,施工方按照施工圖以及材料表裝修火鍋店,所產生的疑問部分,有時候需要設計單位介入說明,這樣才能充分保障火鍋店裝修效果。
好了,以上便是鄭州裝飾設計對于一家火鍋店裝修設計方案的介紹,相信這一套完整的火鍋店設計方案能夠讓投資者充分了解你的火鍋店該怎么裝。
轉載請注明原文地址:http://m.yaoyongwanju.com/wenda/4903.html
現在預約咨詢,立即享受免費量房設計&施工報價
10秒快速在線申請